Réalisation d’une maison individuelle à petit budget sur Vallauris

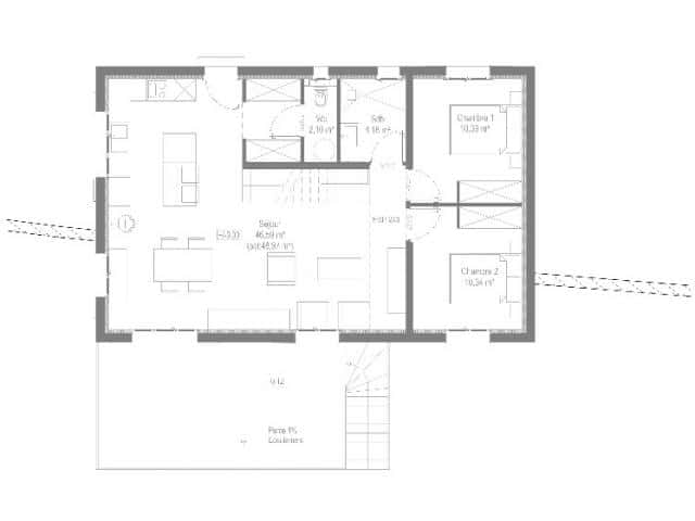
plan-rdc plan-etage image4

Description du projet

La mission sur cette réalisation était de la réalisation d’une maison afin de réunir des membres d’une famille qui étaient trop éloignés (personne âgée) afin de pouvoir renouer des liens et ne pas isoler un membre de la famille.

Le programme ne demandait pas d’extravagance, simplement d’avoir deux chambres avec un espace jour ouvert avec une double hauteur. La présence d’une mezzanine afin de profiter du travail à la maison et en même temps garder un oeil sur la personne âgée.

Le budget étant limité, il a fallu simplifier au maximum la forme et les espaces pour se concentrer sur la manière de vivre des occupants.

Si vous aussi vous souhaitez réaliser votre maison, n’hésitez pas à prendre contact pour en parler.

Localisation: Vallauris

Autres projets

Optimisation des espaces pour cet appartement au centre de Cannes
Modernisation de façade légère villa avec aménagement extérieur à Vallauris
Villa contemporaine avec vue sur la baie de Golfe Juan dans les hauteurs

Prêt à donner vie à votre projet ?

Contactez‑moi dès aujourd’hui pour parler de vos envies et transformer vos idées en une réalisation concrète et unique.